The Masters

Project Details

Berlien & Co.

Maui Plumbing successfully completed the rehabilitation of the underground drain, waste, and vent (DWV) system serving 32 luxury condominium units at The Masters at Kāʻanapali.

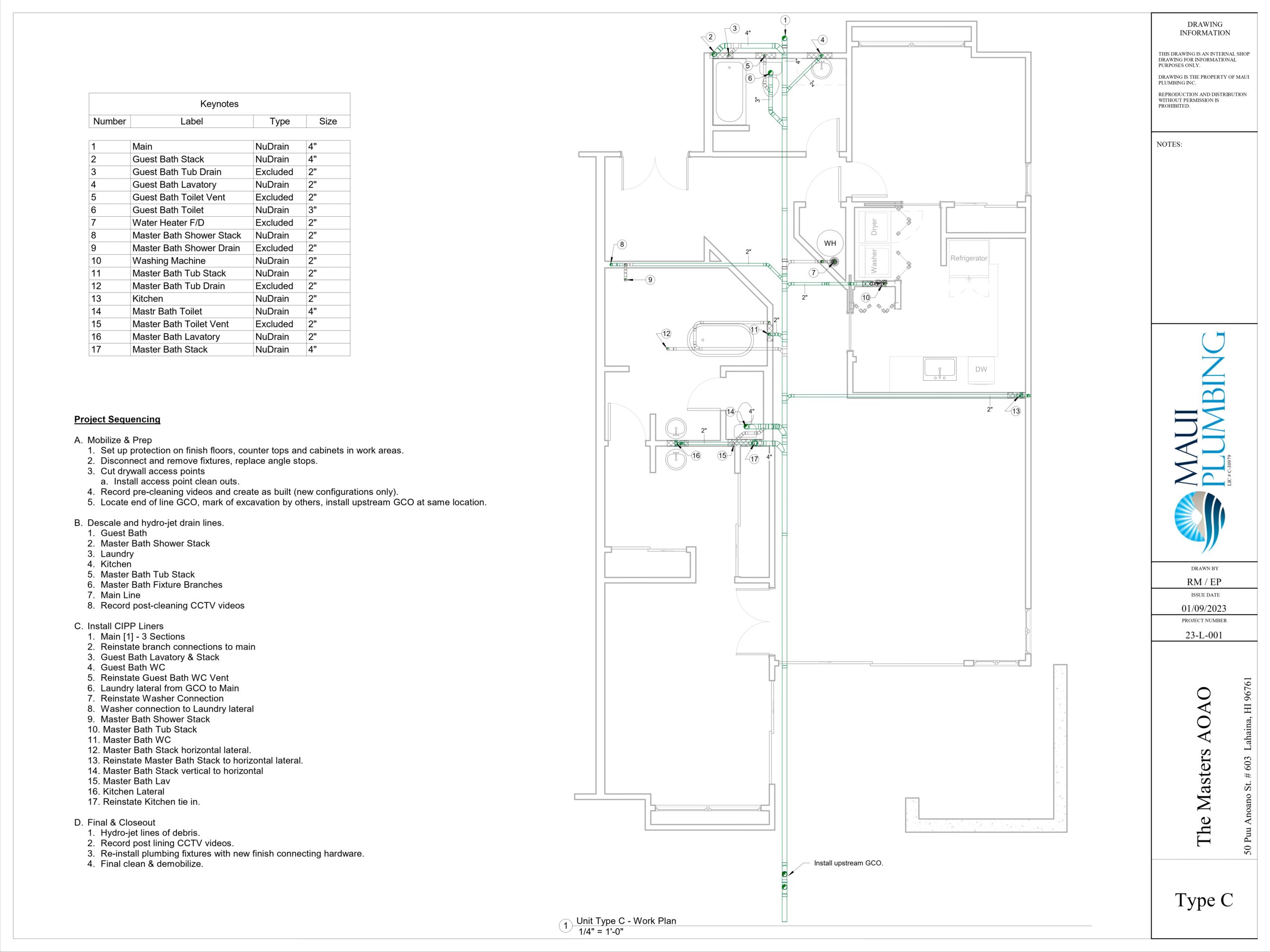
Our team began by developing detailed as-built documentation and project-specific work plans to accurately map pipe routing, sizing, and depth across the property. This upfront planning allowed for precise execution and minimized uncertainty throughout construction.

Utilizing the NuFlow Technologies cured-in-place pipe (CIPP) lining system, we rehabilitated the existing 2″-4″ underground cast iron piping without the need for full system replacement. This trenchless approach eliminated extensive demolition of finished surfaces and casework—preserving the integrity of high-end interiors while significantly reducing overall disruption.

Work was carefully phased on a unit-by-unit basis, with each condominium completed in approximately 5–7 days. This efficient turnaround minimized downtime and helped ownership avoid substantial rental revenue loss.

This project highlights our ability to combine advanced rehabilitation technologies with thoughtful planning and execution delivering long-term infrastructure solutions while protecting both property value and occupant experience.

Explore more of our work:

Opukea – Lahaina

Vidinha Stadium – Kauai

Kamaole Sands

Add Your Heading Text Here

Lorem ipsum dolor sit amet, consectetur adipiscing elit. Ut elit tellus, luctus nec ullamcorper mattis, pulvinar dapibus leo.

Lorem ipsum dolor sit amet, consectetur adipiscing elit. Ut elit tellus, luctus nec ullamcorper mattis, pulvinar dapibus leo.